Программный модуль визуализации помещений на поэтажном плане здания.
http://arenda.1irr.com
Управление арендой объектов недвижимости (бизнес-центра, гостиницы, логистического комплекса и т.п.) не обходится без специализированных программ, позволяющих вести учет помещений, арендаторов, сроков аренды, договоров и платежей. За последнее десятилетие эти программы по аренде из простого инструмента электронного учета (вместо бумажного) превратились в средство продвижения арендного бизнеса. Базы данных по аренде стали содержать не только таблицы чисел, дат, строковых переменных, но бланки договоров, рисунки поэтажных планов, фотографии интерьеров помещений. Наиболее продвинутые базы данных по аренде позволяют даже решать задачи визуального выбора арендуемого помещения и визуального анализа хода аренды. Для решения этих задач на поэтажном плане с помощью специальных технологий отображаются все помещения: сданные в аренду помещения помечены красным цветом, помещения, срок аренды которых заканчивается в течение месяца, помечены желтым цветом и свободные – зеленым. Пользователь, наведя указатель мыши на требуемое помещение, двойным кликом левой кнопки может вызвать форму с договорами аренды, в которых участвует помещение. В качестве примера назовем продукт компании Регосс АИС «РЕГОСС::АРЕНДА», использующего технологию компании PlanTracer (разработка СSoft Development) [1].
Задача визуализации помещений на поэтажных планах в базах данных чрезвычайно актуальна. Технический паспорт здания, выдаваемый БТИ, содержит чертежи поэтажных планов этого здания и экспликацию (перечень помещений) к ним. Сокрушительное большинство программ по аренде оперирует только с данными экспликаций, поэтажные планы служат для них неким украшением. Хотя каждый менеджер по аренде для себя вручную (или с помощью программы PBRASH) раскрашивает помещения на бумажных копиях поэтажных планов, отмечает на них арендаторов и другую информацию. Ему (менеджеру) так удобнее, эти бумажные портянки он прячет от заинтересованных лиц, в том числе и руководства. Визуальный учет площадей по портянке для менеджера намного эффективнее электронной базы данных (и удобней, и дешевле, и конспиративнее). Поэтому визуализация помещений на электронных поэтажных планах не нужна менеджеру по аренде, но зато, очень нужна потенциальному арендатору, руководителю менеджера, собственнику здания.
Как это ни странно, но огромное число ущербных баз данных по аренде без функции визуализации помещений на электронных поэтажных планах, широко распространены в настоящее время, время, когда бурно развиваются сайты с интерактивными картами. Казалось бы те же задачи визуализации, те же технологии, так, где применение!
Ответ на наш взгляд довольно простой. Сегодня бухгалтерия и финансовый учет крупных предприятий уже перешли на компьютерные технологии, но этот переход потребовал затрат человеческих и денежных. Научившись работать с программой 1С – бухгалтерия ранней версии, главбух не желает переходить на более новые версии. Также и с программами по аренде. Работает программа и ладно. Зачем новые версии с дополнительными функциями, только деньги тратить.
Мы предлагаем другое решение – самостоятельный модуль визуализации помещений на поэтажном плане. Модуль подключается к любой базе данных, где требуются решать задачи визуализации. Поясним, как работает модуль.
Рассмотрим для примера базу данных по аренде помещений, разработанную группой «1IRR» [2]. Главная таблица базы показана на рис. 1.

Рис. 1. Главная форма базы данных по аренде недвижимости «Аренда».
Перейдя на форму «Объекты» мы можем сформировать запросы для различных режимов визуализации помещений на поэтажном плане. Можно вывести изображения помещений, раскрасив их по типу, по наличию договора аренды, по состоянию (свободно, снято, ремонт и др.), вывести на плане одно помещение (рис. 2).

Рис. 2. Форма «Объекты».
Данные запроса сохраняются в текстовом файле формата xml, и автоматически запускается модуль визуализации. Программа считывает данные из обновленного xml файла и по ним рисует векторные изображения помещений на растровой картинке поэтажного плана. Теперь единый растровый холст разбит на отдельные фрагменты, и вы можете прочитать краткие сведения о любом фрагменте (помещении) в виде всплывающей подсказки при наведении курсора мышки на него (рис. 3). Для получения более детальной информации о помещении достаточно наведя на него курсором кликнуть левой кнопкой и получить отчет, сформированный в базе данных. Если дважды кликнуть левой кнопкой на каком-либо помещении, то вы переходите назад в базу данных, выполнив команду выбор этого помещения.

Рис. 3. Визуализация помещений на поэтажном плане в режиме по «типу».
По запросу выбрать помещение (кнопка «Выбранное»), получаем изображение поэтажного плана только с одной векторной картинкой нужного помещения, выделенной цветом (рис. 4). Можно вывести картинки нескольких помещений в соответствие с запросом, сформированным в базе данных. Например, выбрать и отобразить все арендованные помещения, все свободные (рис. 5), или принадлежащие одному арендатору и т.д.

Рис. 4. Визуализация помещения на поэтажном плане в режиме «выбрать одно».

Рис. 5. Визуализация помещений на поэтажном плане в режиме «свободные».
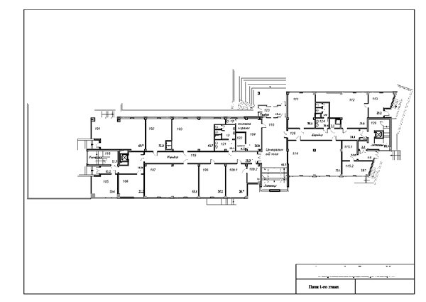
Для сравнения, обратите внимание, как выглядит традиционная визуализация помещений на поэтажных планах в подавляющем большинстве баз (рис. 6).

Рис. 6. Традиционная визуализация помещений на поэтажном плане.
Модуль выполнен на основе технологии Flash, для передачи данных между базой и модулем используется технологии ADO.NET и XML.
Другие применения модуля визуализации
Задача визуального выбора помещений и визуального контроля аренды на поэтажных планах может показаться кому-то специфической и ограниченной рамками только этого применения, но это не так. В отношении объектов недвижимости модуль может быть применен для визуального выбора и контроля продаж и аренды квартир [3], номеров в гостиницах и т.д. Установка модуля на информационных сайтах риэлторских компаний позволит сделать эти сайты действительно динамическими, так как время изменения информации на сайте будет определяться временем формирования запроса в базе данных после изменения статуса помещений. Это позволит существенно увеличить скорость актуализации информации на сайте, создать механизм анализа процесса выбора помещений (системы CRM), повысить контроль процесса продаж, снять риски двойных продаж и т.п.
Модуль визуализации может быть использован в любых динамических информационных системах, где визуальный выбор и контроль объектов более эффективен, чем табличный. Применение модуля особенно актуально в информационных системах с высокой частотой изменения данных, когда требуется делать выбор, анализируя постоянно меняющуюся картинку. Это могут быть динамические картограммы, отражающие изменения контролируемых параметров, инфографика, информационные сайты о наличии билетов (ж/д, самолеты, водный транспорт, автобусы, кинотеатры, стадионы), терминалы по продаже и бронированию мест на транспорте, в гостиницах, на различные представления и состязания.
Также модуль визуализации может быть полезен для визуального контроля производственных процессов, мониторинга территорий, визуализации решений задач логистики в быстро меняющейся обстановке (прорисовки маршрутов транспорта, графов и т.д.).
Ссылки:
1. http://www.regoss.ru/about_regoss/development/
3. Таблица
4. Использование модуля для управления арендой
5. Использование модуля для мониторинга
6. Использование модуля для визуального поиска и выбора товаров в интернет магазине
7. Использование модуля для тематической интерактивной карты